アクセントスリットで明るく開放感を感じる住まい
一戸建て京都市下京区 K様邸 1階改装工事(狭小間口)
- 概要
- 築年数37年
- 施工面積54 m2(約16.34坪)
- 費用774万円(税込)
- 工期2ヶ月
- 家族構成70代夫婦
お客様の声
【きっかけ】
・床がブカブカしたり、設備の老朽化
・仕事も落ち着いたので、これからの生活も考えて使いやすい間取りにしたい。
【夢・悩み】
・家族がみんなで過ごせる広くて明るく快適なリビングにしたい。
・バリアフリーにして使いやすい間取りに。
何度か自分で直して住んでいた家も築37年ともなると、家全体の老朽化で手に負えなくなり、今回全体的なリフォームを決心しました。歳も重ね、子供も成長し独立したので、生活しやすい環境を1階に作ってほしいとお願いしました。各室間の段差解消してもらい、水廻りも大きくなって、以前よりとても快適な生活になりました。
思い切ってリフォームを頼んで本当に良かったです。ありがとうございました。
リビング
![]()
外観
![]()
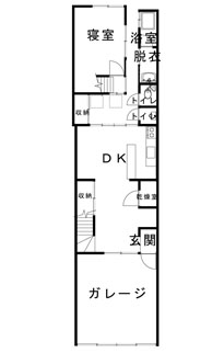
間取り
![]()
築37年になるお家は経年劣化による老朽化が激しく、2階の重さで梁が垂れさがっている状態など、耐震性としても不安な状態でした。そこで住宅調査をもとに、適切な耐震補強をおこないました。
これからのK様の生活を考え、1階での生活スタイルを中心としたバリアフリーを考慮した使いやすい間取りと、機能性をプラスアルファして閉鎖的感を解消するためにスリット格子を使ったり、構造上抜く事が出来ない筋交いはインテリアに合わせて塗装して見せるプランをご提案させて頂きました。
ご主人様が大事に手直しされながら住んで来られたお家を、これからも長くお住まい頂けるようになり私達も心から嬉しく思います。リフォーム後に伺った際も「快適で暮らしやすい」とおっしゃられていました。これからも、定期的なメンテナンスも含めお付き合いさせて頂きたいと思います。
施工DATA
※表示価格は全て税込価格となっております。
※新築事例の場合もございます。


