自然素材×光。バリアフリーを考慮したあたたかい家。
一戸建て京都市南区 Y様邸 全面改装工事
- 雑誌掲載
- コンテスト受賞
- 概要
- 築年数25年
- 施工面積157.3 m2(約47.58坪)
- 費用1260万円(税込)
- 工期3ヵ月
- 家族構成60代夫婦、娘
お客様の声
【きっかけ】
ご主人の実家に住まれるにあたり、使い勝手が良く、快適な住まいにリフォームしてからの引越しをご希望されたため。
【夢・悩み】
・各部屋がとても暗いので、出来るだけ明るく気持ちよく生活にしたい。
・収納を出来るだけ多く作って、たくさんある本も整理したい。
・以前住んでいたマンションでは十分な広さが取れなかったので、ソファを置いてもゆっくりくつろげる大きなLDKがほしい。
・既存の良い部分を活かしながらのリフォームにしたい。
・これから歳を重ねていく上で、家全体をバリアフリー化したい。
主人の実家に引越しするにあたり、今まであまり手入れをしていなかったので、使い勝手を良くしたいと思っていたところ、主人の兄夫婦からハウスドゥの折込チラシをもらったのをきっかけにショールームへ相談に行きました。
特にこれから歳を重ねて行く上で、家全体のバリアフリー化や動線が良くなるようにお願いしました。
間取りを決めるまでに色々と悩みましたが、たくさん悩んで決めた甲斐もあり、動線も短くなった上に、陽の光が入らなかった部屋にも、新しく窓をつけてもらったことで広々とした明るいLDKになり、とても快適に過ごせるようになりました。
気になっていた耐震補強もしっかりとしていただき、自然素材を使ったリフォームの出来栄えにも大変満足しています。
LDK
![]()
![]()
【2階:洋室】日当たりの良い南側に娘様のお部屋を配置。服を掛けられる『長押』はお気に入りの写真、CDや絵も飾れ、多機能にわたって使用できます。一面だけカラフルなシャーベットイエローの壁紙は、お部屋に可愛さもプラス。
【左:2階:洋室収納】毎日使うものはすぐに取り出せるよう、収納(右奥)には敢えて扉をつけませんでした。
【右:2階:洋室クローゼット】収納される物を事前にお伺いし、収納プランからご提案。ハンガーを掛けた服の背面の棚には本や小物を収納出来ます。
【左:2階:寝室②】1階とは異なる無垢材を採用し、ナチュラルでリラックスできる寝室空間に。
【右:2階:寝室②クローゼット】天井までの高さを利用した収納。お布団も収納されるということなので、こちらは中段がある収納プランを採用。
水廻り
【階段下収納】 階段下と通り抜けるトイレ空間の手前(階段下)に、掃除道具やトイレ用品を収納出来るようにしました。
![]()
【玄関ホール】状態も良く、以前の面影を残す階段。式台や梁も活用し、ご主人の思い出を残せる形に。以前お住まいのマンションには無かった、ゆったりと広い玄関。
![]()
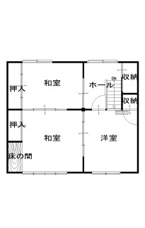
間取り
![]()
現在の使い勝手の悪い間取りを改善されたいというご要望に、収納力・明るさ・素材感の3つを中心にしたプランニングをさせて頂きました。1階は光を取り入れために、間仕切壁を取り一続きの広いLDK空間にし、また構造上問題の無い所には窓を新設し、採光を確保しました。各空間に何を収納されるかをヒアリングした上で、適材適所に収納を設けました。
『良い物は活かしてリフォーム』という事で、状態の良かった玄関の梁や式台、階段を活かしご主人様の思い出の面影も残す事ができました。心配されていた耐震補強も十分に行い、生まれ変わったお家で新たに住まわれるご家族の思い出も更に刻まれる、素敵な住まいとして住み継いで頂ければと思います。
施工DATA
■施工内容/水廻り:ハウスドゥLIXIL4点セット/キッチン:アミィ I型2550/UB:ラバス1616/洗面化粧台:ピアラW750/トイレ:アメージュZ/床:無垢フローリング/天井・壁:クロス、珪藻土(LDK)、エコカラット(洗面脱衣室)/収納造作/飾り棚、ニッチ造作/サッシ取替/外壁塗装/防蟻工事/減築/
■費用 ¥12,600,000(税込)+オプション¥3,600,000(税込)
※表示価格は全て税込価格となっております。
※新築事例の場合もございます。



