狭小間口の店舗を明るく心地のよい住まいに。
一戸建て京都市西京区 I様邸 全面改装工事(狭小間口)
- 概要
- 築年数35年
- 施工面積89.4 m2(約27.04坪)
- 費用945万円(税込)
- 工期2ヶ月半
- 家族構成60代夫婦、娘1人、孫1人
お客様の声
これからの暮らしがとても楽しみです。
アップさんに決めたきっかけは、ホームページを見たときに、自分たちの家と同じ狭小間口の施工例が多く、実績があり、担当者の方も信頼できる人だったからです。いろんな要望で「明るく」「友人から頂いた建具の既存利用」「収納を多く」など予算に合わせ、ほとんど叶えていただき大変嬉しく思っています。これからの暮らしがとても楽しみです。
![]()
楽しみにしています。
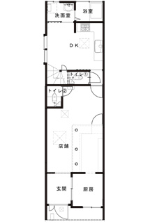
料理屋をされていたI様の店舗の部分を含めて全体的にリフォームして欲しいとのことで、いろいろな提案をさせて頂きました。狭小間口だったことから家の中はとても暗く、1階はほとんど店舗になっており、収納スペースが欲しいとのことでした。提案は全体的に内装を明るくしたり、階段にはガラスブロックを採用し、光の差し込む空間に。収納スペースも空間を最大限利用できるよう天井収納も設けました。「これからの暮らしが楽しみ」というお客様の言葉に、私たちもどのように暮らされるのか、とても楽しみにしています。工事ありがとうございました。
LDK
![]()
水廻り
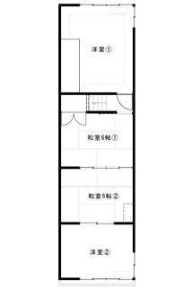
間取り
施工DATA
■施工内容/キッチン:LIXILアミィL型1650×2250/UB:TOTOサザナ1616/洗面台:INAXピアラDS W900/トイレ:TOTO Z1/LDK:床:ウッドワンジュピーノ、パイン/天壁:クロス キッチンカウンター造作/外壁塗装/基礎打設/
■費用 ¥9,450,000(税込)+オプション¥3,750,000(税込)
※表示価格は全て税込価格となっております。
※新築事例の場合もございます。



