店舗から町家風モダンのバリアフリー住宅に。
一戸建て京都市南区 Y様邸 全面改装工事
- 概要
- 築年数37年
- 施工面積128.8 m2(約38.96坪)
- 費用1226万円(税込)
- 工期3ヶ月半
- 家族構成40代ご夫婦、息子様、お父様
お客様の声
バリアフリーと使っていない店舗の活用をしようと思った為。
夢・悩み
父と同居することをきっかけに、全体的なバリアフリーと使っていない店舗を住居としてリフォーム出来ればと思い、相談させて頂きました。
リフォームをして本当に生活も変わり、家がバリアフリーになったことで父の安心できる家になりましたし、家の動線やプライバシーについても配慮して頂いたので快適な生活を送っています。明かりも間取りを変更することで入るようになりましたし、前の店舗の一部分をガレージにしてもらったことは、生活しやすくなった理由の1つです。
ハウスドゥさんの施工事例の様にしたいという内容に対しても、自然素材や町家風モダンなテイストなど期待を上回る提案をして頂いたので感謝しております。
LDK
光を入れる為に、高窓を提案。隣家からのプライバシーを守る為に高さを考慮しました。
また、テレビ上には飾り棚を設け、写真等を飾って頂いてます。
【キッチン:収納】キッチン背面には冷蔵庫も置ける収納スペースを提案。収納スペース前には扉を設け、急な来客にも扉を閉めることで隠すことが出来ます。また圧迫感を感じさせない半透明な扉を採用しました。
【ダイニング:カウンター】今は子供のおもちゃなどの収納として活躍するカウンター収納は、将来お子様が大きくなり、家族それぞれの食事の時間が変わった際に、簡単に食事のとれるスペースとして提案。
2F洋室
【2階洋室】2階にも無垢フローリングを使用し、居心地のいい空間に。
【ウォークスルー:収納】2つの部屋に繋がるウォークスルー。タンスも置けるスペースは、それぞれの部屋をスッキリしてくれるます。
![]()
【水廻り】手すりなど、安心して使用して頂ける水廻りに。トイレのアクセントには、水色の壁紙もプラス。
![]()
![]()
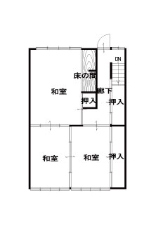
間取り
![]()
同居をきっかけに、リフォームすることを決められたY様。
住んでおられるお父様の為にも、「安心できる明るい家」をテーマに提案しました。また、弊社の施工事例をご覧になり、町家風でモダンなテイストにしたいということも考慮しました。
間取りについては、お父様が移動するスペースを最小限に抑えるよう、水廻りをお父様の寝室周りに集中させました。また、光が入るよう階段の位置を変更することで、今までよりも光の入る明るい家を実現。隣家とのプライバシーを守るためにも、LDKは高窓を提案し、中が見えないようにしました。今まで店舗の厨房だった部分も、要望にあったを駐車場を作り、車から家までの動線も短くしました。
パースを見せながらテイストを見て頂いたり、ショールームでは自然素材を提案しました。工事後に「期待以上」という言葉を頂けたので、嬉しく思います。
施工DATA
■施工内容 /ハウスドゥLIXIL4点セット/キッチン:アミィI型2550/UB:ラバス1616/洗面化粧台:ピアラW900/トイレ:サティスアステオ/床:無垢フローリング、へりなし畳(LDK)/天井・壁:クロス/階段掛け替え/カウンター、飾り棚、収納造作/屋根一部葺き替え/外壁塗装・サイディング張り/ガレージ新設/手すり取付/
■面積 /128.80㎡(約38.96坪)
※表示価格は全て税込価格となっております。
※新築事例の場合もございます。


