オープンで開放的な家。家族の集まる快適空間。
一戸建て京都市北区 M様邸 全面改装工事
- 概要
- 築年数21年
- 施工面積105.04 m2(約31.77坪)
- 費用1006万円(税込)
- 工期3ヶ月
- 家族構成40代ご夫婦、娘様2人、息子様
お客様の声
きっかけ
間取りに不満がありリフォームしたいと思っていた際に、折込チラシを見た為。
夢・悩み
・間取りに不満があり、スッキリしたい。
・子供にそれぞれの部屋を作ってあげたい。
・倉庫となっている空間を部屋として使いたい。
間取りに不満があり、いつかはリフォームしたいなと思っていたときに、ハウスドゥさんの名前を知っていたこともあり、折込チラシを見てショールームに行きました。
特に1階にあるキッチンに関しては狭く、料理をするのにとても不便でした。また、倉庫として使用していた部分を子供たちの部屋としてリフォーム出来ないかと自分たちで考えていたことを伝えさせていただきました。
ハウスドゥさんは、LDKのイメージを分かりやすくパースで提案してくださったり、解体後に耐震補強やロフトの利用について出来ることを全て言ってくれました。特にパースに関しては、提案してくださった内容に私たちがこういう風なことは出来ますかと私たちのリフォーム後のイメージを固めていけたので、とても満足しています。
両親や仕事先の方たちからも「リフォームしてよかったね、すごくいい!」など絶賛して頂けたので、心からリフォームして良かったと思います。
LDK
【LDK:対面キッチン】LDKが見渡せる対面キッチン。奥様が安心して料理のできる空間に。
![]()
【多目的ホール】ご家族の趣味であるピアノやご主人様がパソコンが見ていたりなど、家族で楽しめる空間に。階段下の少し高めに造作したカウンターにすることで、立ちながら楽譜を見ることもできます。
洋室
【洋室】LDKがすぐ目の前の息子様の洋室。オープン扉を開ければLDKと繋がり、空間がより広くなります。
![]()
【トイレ】一面壁紙を張り替えるだけで、空間を楽しめるアクセントになります。
![]()
【玄関:収納】玄関と多目的ホール、どちらにも繋がる収納を造作。家に帰ってこられた時の上着や荷物、また多目的ホールの収納としても使用出来ます。
【階段:ニッチ】階段には小物が飾れるニッチを造作。
階段を下りる度に見れるニッチの小物に心が癒されます。
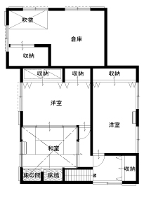
間取り
![]()
2階の倉庫部分を部屋にしたい、2階にLDKを持ってきたいなど具体的にイメージを持っておられる中で、そのイメージをパースなどで具現化していきました。また、LDKをより広くするために、耐震補強の提案や解体後に洋室となる部分のロフトの提案をさせていただきました。
施工DATA
■施工内容 /水廻りPanasonic3点セット/キッチン:リビングステーションLクラス I型2550/UB:ココチーノSクラス 1616/洗面化粧台:ウツクシーズ W900/トイレ:TOTO ネオレスト・ZJ/床:無垢フローリング/天井・壁:クロス/二重サッシ取付/カウンター・ニッチ・収納造作/
■面積 /105.04㎡(31.78坪)
■費用 /¥10,060,000(税込)
※表示価格は全て税込価格となっております。
※新築事例の場合もございます。


